Подземная емкость D 3000 литров
Накопительная емкость D 3000 литров предназначена для сбора, хранения и дальнейшего использования или утилизации технической, питьевой воды, дизельного топлива, хозяйственно-бытовых, дождевых и талых стоков.
Рекомендации по установке и монтажу накопителя, в подземном исполнении:
Площадка под накопитель должна располагаться на расстоянии не менее 5 метров от дороги и не менее 3 метров от деревьев.
Глубина заложения накопителя зависит от глубины подводящего трубопровода, местных норм глубины промерзания грунта или определяется проектом. Если уровень грунтовых вод расположен выше чем отметка низа накопителя, то необходимо закрепление, которое производится пластмассовым или капроновым канатом к бетонной плите. В общем случае корпус устанавливается на уплотнённый грунт дна котлована.
По технологии установки полимерных емкостей в грунт, засыпка пазух между стенками котлована и стенками емкости производится не вынутым грунтом, а песком без крупных твердых включений либо смесью песка и цемента (в пропорции 5:1), с одновременным постепенным заполнением накопителя водой. Песок укладывается послойно с обязательным трамбованием.
Верхний слой засыпается растительным грунтом.
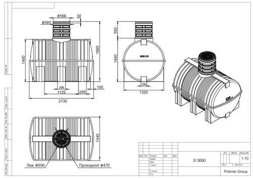
Характеристики
|
Объем, л
|
3000 |
|
Цвет
|
Зеленый, Черный |
|
Материал
|
Полиэтилен |
|
Высота горловины, мм
|
500 |
|
Размеры, мм
|
2130х1440х1990 |
|
Ширина, мм
|
1440 |
|
Высота, мм
|
1990 |
|
Длина, мм
|
2130 |
|
Вес, кг
|
120 |
|
Диаметр горловины
|
580 |
Описание
Накопительная емкость D 3000 литров предназначена для сбора, хранения и дальнейшего использования или утилизации технической, питьевой воды, дизельного топлива, хозяйственно-бытовых, дождевых и талых стоков.
Рекомендации по установке и монтажу накопителя, в подземном исполнении:
Площадка под накопитель должна располагаться на расстоянии не менее 5 метров от дороги и не менее 3 метров от деревьев.
Глубина заложения накопителя зависит от глубины подводящего трубопровода, местных норм глубины промерзания грунта или определяется проектом. Если уровень грунтовых вод расположен выше чем отметка низа накопителя, то необходимо закрепление, которое производится пластмассовым или капроновым канатом к бетонной плите. В общем случае корпус устанавливается на уплотнённый грунт дна котлована.
По технологии установки полимерных емкостей в грунт, засыпка пазух между стенками котлована и стенками емкости производится не вынутым грунтом, а песком без крупных твердых включений либо смесью песка и цемента (в пропорции 5:1), с одновременным постепенным заполнением накопителя водой. Песок укладывается послойно с обязательным трамбованием.
Верхний слой засыпается растительным грунтом.
Сертификаты
Доставка и самовывоз
В пределах зеленой зоны:
-
светильники бесплатно от 3 000 руб.
-
малогабаритные грузы - 250 руб.
-
крупногабаритные грузы и грузы весом более 10 кг., до подъезда - 400 руб.
В Ленинградскую область - стоимость в пределах зеленой зоны. + 30 руб./км.
Службой СДЭК:
В пункт выдачи или курьером до двери.
Стоимость и срок указаны на странице товара и в корзине. Система рассчитает их автоматически. Срок получения указывается примерный, уточняйте у менеджера.
Самовывоз:
Из нашего пункта выдачи у метро Ладожская или в ПВЗ СДЭК.
-
Курьерской службой СДЭК: в пункт выдачи или курьером до двери.
-
Стоимость и срок указаны на странице товара и в корзине. Система рассчитает их автоматически. Срок получения указывается примерный, уточняйте у менеджера.
-
Минимальная сумма - 2000 руб.
-
Бесплатно для светильников на сумму от 10 000 руб.
Отслеживание посылки по трек-номеру. Проверка на повреждения при получении. Посылки страхуются на полную сумму.
Вопросы и ответы
Оплатить по факту получения можно только в городе Санкт-Петербурге. Для отправки в другие регионы России необходимо полностью оплатить покупку.
При этом, если доставленный товар был ненадлежащего качества, вы вправе от него отказаться.
В Санкт-Петербурге вы можете забрать покупку в нашем пункте выдачи у метро Ладожская.
Стоимость и срок указаны на странице товара и в корзине. Система рассчитает все автоматически. Срок получения указывается примерный.
После оформления заказа, с Вами свяжется наш менеджер, для уточнения деталей.
Способы оплаты
При оформлении заказа выберите оплату по счету или запросите его у менеджера после оформления. После подтверждения заказа оплатите счет в интернет-банке или в отделении банка в течение трех рабочих дней. Выставляем счета c НДС.




